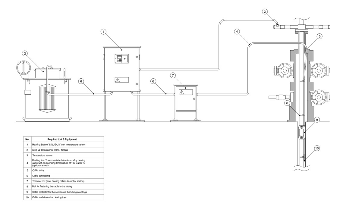
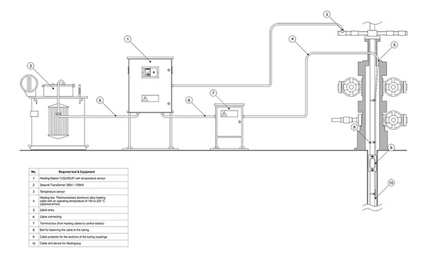
THERMOELECTRIC SYSTEM

FOR HEATING THE FLUID IN OIL WELLS

Liquidus is a trademark for Petroleum Engineering Systems heating solutions for oil wells and pipelines.

In order to avoid ARPD we provide an effective solution to heat oil in a tube by installation electrical cable and Heating Station.

We will provide more technical info, budget calculations and consulting based on a questionnaire we send you in reply.

Questionnaire download

 

Composition liquidus: